33 Scudders Lane Offered at $1,348,000 - Glen Head, NY 11545
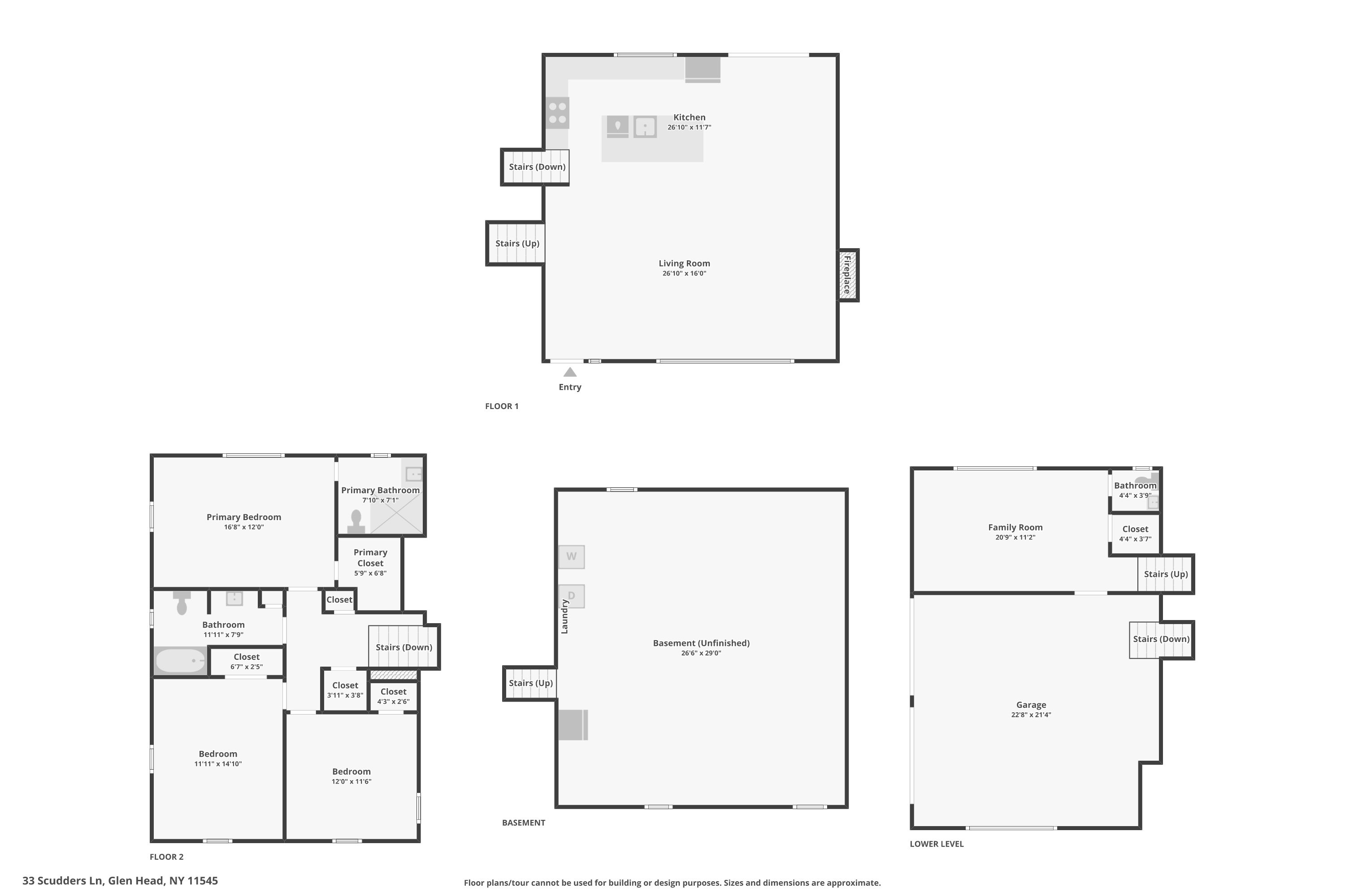
3 Bedrooms
3 Bathrooms
1956 Year Built
2,500 Sq. Ft.
North Shore Schools
920469 MLS
Fully renovated in 2019, this stylish 3-bedroom, 2.5-bath home offers a true open layout with hardwood floors, a cozy gas fireplace, and built-in Sonos surround sound—perfect for movie nights and entertaining. Modern smart-home features include app-controlled garage access (MyQ), an alarm system, and individual room thermostats for zoned central air, giving you next-level comfort and convenience.
The chef’s kitchen and updated baths provide a sleek, modern look, while James Hardie siding, a new roof, full-house generator, and in-ground sprinklers add long-term peace of mind. Outside, enjoy a spacious backyard with dual patios for BBQs and gatherings, plus an expansive 2,500 sq. ft. driveway that fits up to 13 cars along with a 2-car garage—rare for the area.
Set on a beautifully landscaped property at the beginning of Scudders Lane, you’re just 2 miles from Hempstead Harbor Beach—ideal for morning coffee, weekend walks, or relaxing with the Sunday paper by the water. Located in the award-winning North Shore School District with low taxes ($15,500 before exemptions), this fully move-in-ready home blends luxury living, outdoor lifestyle, and everyday convenience—perfect for modern buyers seeking both comfort and style.
PROPERTY HIGHLIGHTS
- 0.31-acre corer property with double patio
- Approx. 2,500 SF
- $15,000 annual property taxes (without
exemption) - Fully updated in 2019 with modern finishes
- New roof installed in 2019
- Full-house generator for continuous comfort
- Hardiplank James Siding (weather-proof) with
brick accent - Attached 2-car garage with insulated doors,
operated remotely or via MyQ app - Sonos surround sound in great room and
lower-level family room - Gas heating system – each room with its own
thermostat for zoned control - Central Air Conditioning (CAC)
- In-ground sprinkler system
- Retaining wall – besides the sock covering the
perforated pipe from clogging, there’s one foot of
gravel for drainage underneath this pipe. - North Shore School District





























